
Spacious Independent Villa with Large Tavern/Patio – Near the Beaches of Salento – Property for Sale in Salento, Italy
Located in a quiet residential area of Melendugno, just a short drive from the beautiful beaches of Torre dell’Orso and the Adriatic coast, this large independent villa offers generous living space, privacy, and excellent comfort.
The property is in excellent condition and has an energy efficiency rating of Class B, making it ideal both as a primary residence, holiday home, or investment property.
The villa offers approximately 260 sqm of internal living space across three levels, plus over 100 sqm of outdoor areas and a walkable rooftop terrace.
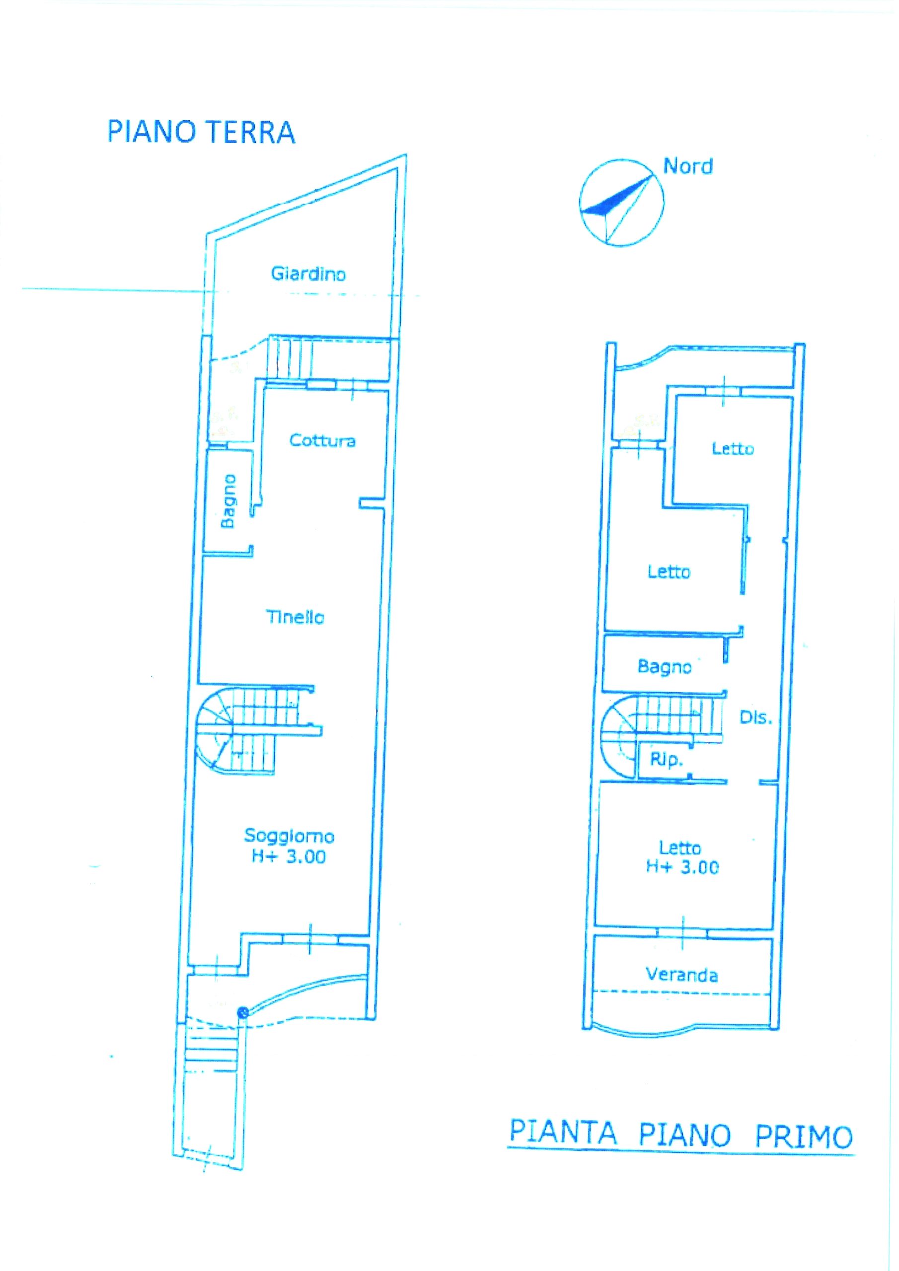
Ground Floor
The ground floor features a bright and spacious open-plan living area, including:
Additional features include:
First Floor – Sleeping Area
The first floor hosts the main sleeping quarters:
Large Habitable Tavern (approx. 90 sqm)
A major highlight of the property is the fully equipped basement tavern, ideal for entertaining guests or creating a separate living area.
It includes:
This space could also be used for guest accommodation or holiday rental purposes.
Features and Comfort
The villa is equipped with:
Key Advantages
✔ Independent villa
✔ Large internal surface (approx. 260 sqm)
✔ Spacious 90 sqm tavern
✔ Private outdoor areas and patios
✔ Energy Class B
✔ Quiet residential location
✔ Close to the beaches of Salento
✨ This property represents an excellent opportunity for families or international buyers looking for a spacious home in the beautiful Salento region of Southern Italy.
Private sale – no real estate agencies involved.
Hinta
€
270,000
Koko
260
m²
Puutarha
15
m²
Kerrosten Lukumäärä
3
Huoneet
10
Makuuhuone
3
Kylpyhuoneet
3
Energiailmoitus
A2
Esteetön Vammaisille
Kyllä
Hissi
Ei
Hinta
€
270,000
Koko
260
m²
Puutarha
15
m²
Kerrosten Lukumäärä
3
Huoneet
10
Makuuhuone
3
Kylpyhuoneet
3
Energiailmoitus
A2
Esteetön Vammaisille
Kyllä
Hissi
Ei
Spacious Independent Villa with Large Tavern/Patio – Near the Beaches of Salento – Property for Sale in Salento, Italy
Located in a quiet residential area of Melendugno, just a short drive from the beautiful beaches of Torre dell’Orso and the Adriatic coast, this large independent villa offers generous living space, privacy, and excellent comfort.
The property is in excellent condition and has an energy efficiency rating of Class B, making it ideal both as a primary residence, holiday home, or investment property.
The villa offers approximately 260 sqm of internal living space across three levels, plus over 100 sqm of outdoor areas and a walkable rooftop terrace.
Ground Floor
The ground floor features a bright and spacious open-plan living area, including:
Additional features include:
First Floor – Sleeping Area
The first floor hosts the main sleeping quarters:
Large Habitable Tavern (approx. 90 sqm)
A major highlight of the property is the fully equipped basement tavern, ideal for entertaining guests or creating a separate living area.
It includes:
This space could also be used for guest accommodation or holiday rental purposes.
Features and Comfort
The villa is equipped with:
Key Advantages
✔ Independent villa
✔ Large internal surface (approx. 260 sqm)
✔ Spacious 90 sqm tavern
✔ Private outdoor areas and patios
✔ Energy Class B
✔ Quiet residential location
✔ Close to the beaches of Salento
✨ This property represents an excellent opportunity for families or international buyers looking for a spacious home in the beautiful Salento region of Southern Italy.
Private sale – no real estate agencies involved.
1200m²
500m²
25
8
10
50m²
70m²
2
2
1
Agents listings not found
1200m²
500m²
25
8
10
50m²
70m²
2
2
1
Älä missaa uusimpia vinkkejä, työkaluja ja taktiikoita menestyksesi saavuttamiseksi